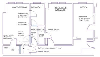
GOALS: Add second bathroom; Open kitchen to dining room.
ROLE: Architect and Construction Manager
VALUE ADDED: Front loading laundry machines were designed into kitchen and hidden behind fold-back, push-in cabinet doors. A murphy bed with drop-down work table was designed to allow the guest bedroom to function as a home office. Existing woodworking details were meticulously copied so that the remodel is fully integrated with the integrity of this historic building.

Real Project Management Services © 2023